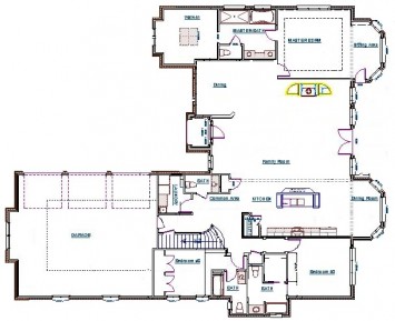
Guiseppe II
2,296 sq ft apx.
Features:
- contact us for pricing details.
- Bedrooms: 3 or 4
- Baths: 2.5, 3, or 3.5
- Living Areas: 1
- Dining Areas: 1
- Garage: 2 car
- Optional upstairs Bonus Room with or without bathroom
- Granite countertops and vanities
* (Disclaimer) Home prices are subject to change.





